
2535R-573-16
October 15, 2025
1741M-452-12
October 16, 2025
2217R-852-22
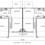
Description
Additional information
| Bathrooms | 2.5 Bathrooms |
|---|---|
| Bedrooms | 2 Bedrooms |
| Sq. Ft. | 2001 – 3000 Sq. ft |
| Styles | 1 Story |


