
1524M-900-24
December 3, 2024
1302R-534-15
October 15, 2025
1465R-338-09
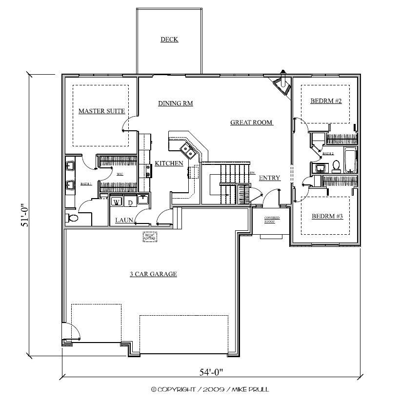
Description
Additional information
| Bathrooms | 2 Bathrooms |
|---|---|
| Bedrooms | 3 Bedrooms |
| Sq. Ft. | 1401 – 1700 Sq. ft. |
| Styles | 1 Story |


